Область применения:
Для монтажа к несущей стене или в гипсокартонную конструкцию
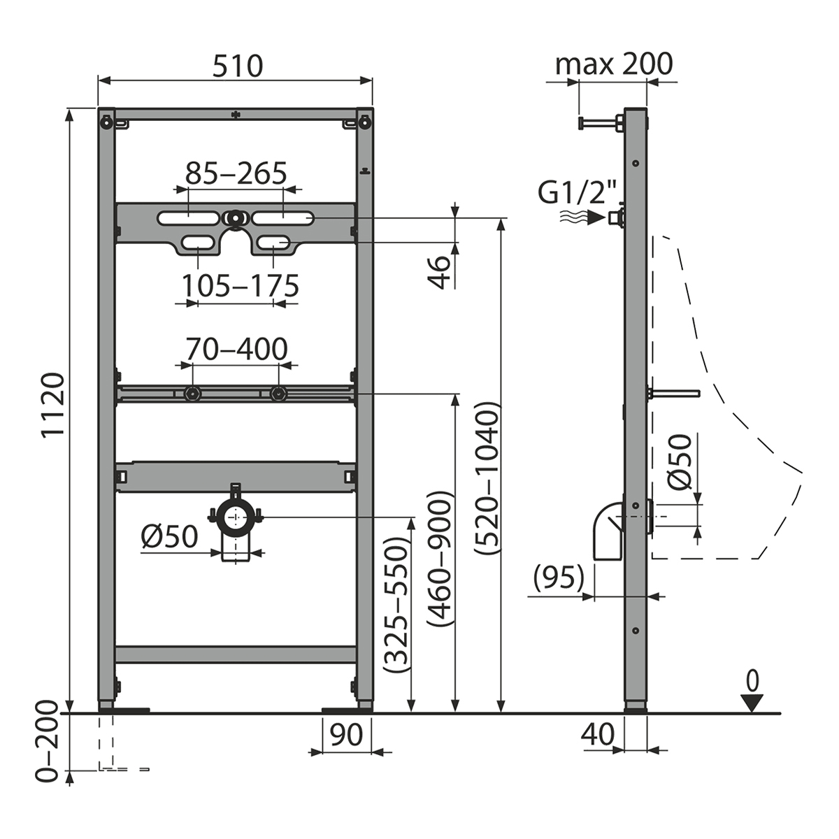
Для монтажа устройства смыва под давлением
Для подвесного писсуара
Свойства:
Материал- металл обработанный порошковой краской
Выдвижные ножки с регулировкой в диапазоне 0–200 мм
Сток с возможностью регулировки от центра 0–110 мм
Водоснабжение с возможностью регулировки от центра 0–125 мм
Для подключения устройства смыва для писсуара ATS001
Обрамление двусоставное – можно установить дополнительно
Регулируемые по высоте монтажные перекладины
Для монтажа к несущей стене или в гипсокартонную конструкцию
Для монтажа устройства смыва под давлением
Для подвесного писсуара
Свойства:
Материал- металл обработанный порошковой краской
Выдвижные ножки с регулировкой в диапазоне 0–200 мм
Сток с возможностью регулировки от центра 0–110 мм
Водоснабжение с возможностью регулировки от центра 0–125 мм
Для подключения устройства смыва для писсуара ATS001
Обрамление двусоставное – можно установить дополнительно
Регулируемые по высоте монтажные перекладины
Отзывы
Оставить отзыв
Загрузка отзывов...
Дополнительная вкладка, для размещения информации о магазине, доставке или любого другого важного контента. Поможет вам ответить на интересующие покупателя вопросы и развеять его сомнения в покупке. Используйте её по своему усмотрению.
Вы можете убрать её или вернуть обратно, изменив одну галочку в настройках компонента. Очень удобно.
